W
O
R
K
/
S
N
D
/
INTER-TERRITORY
STUDENT WORK, UNBUILT, 2012
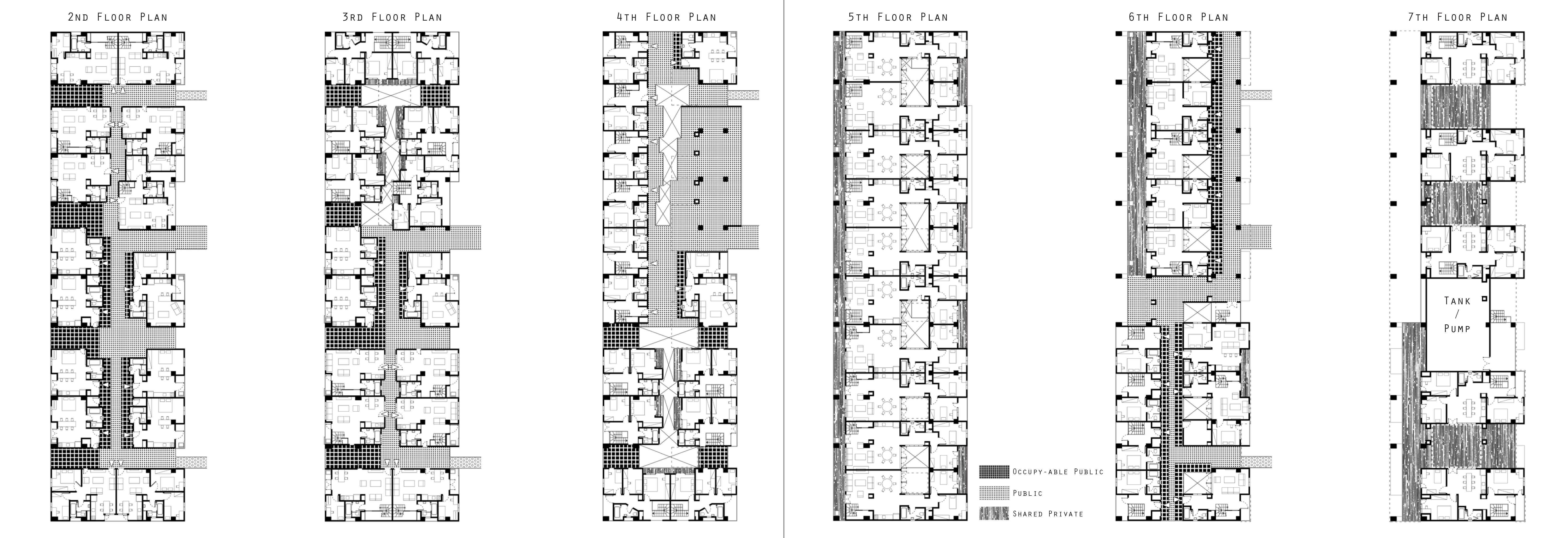
This is a record of my own student work. It is an experiment on implanting local public space
mechanism into residential neighhourhood (housing)









STUDIO NAÏVE DESIGN 2024