S
T
U
D
I
E
S
/
S
N
D
/
ROW HOUSE NO.1
ROW HOUSE + COURTYARD
20251125
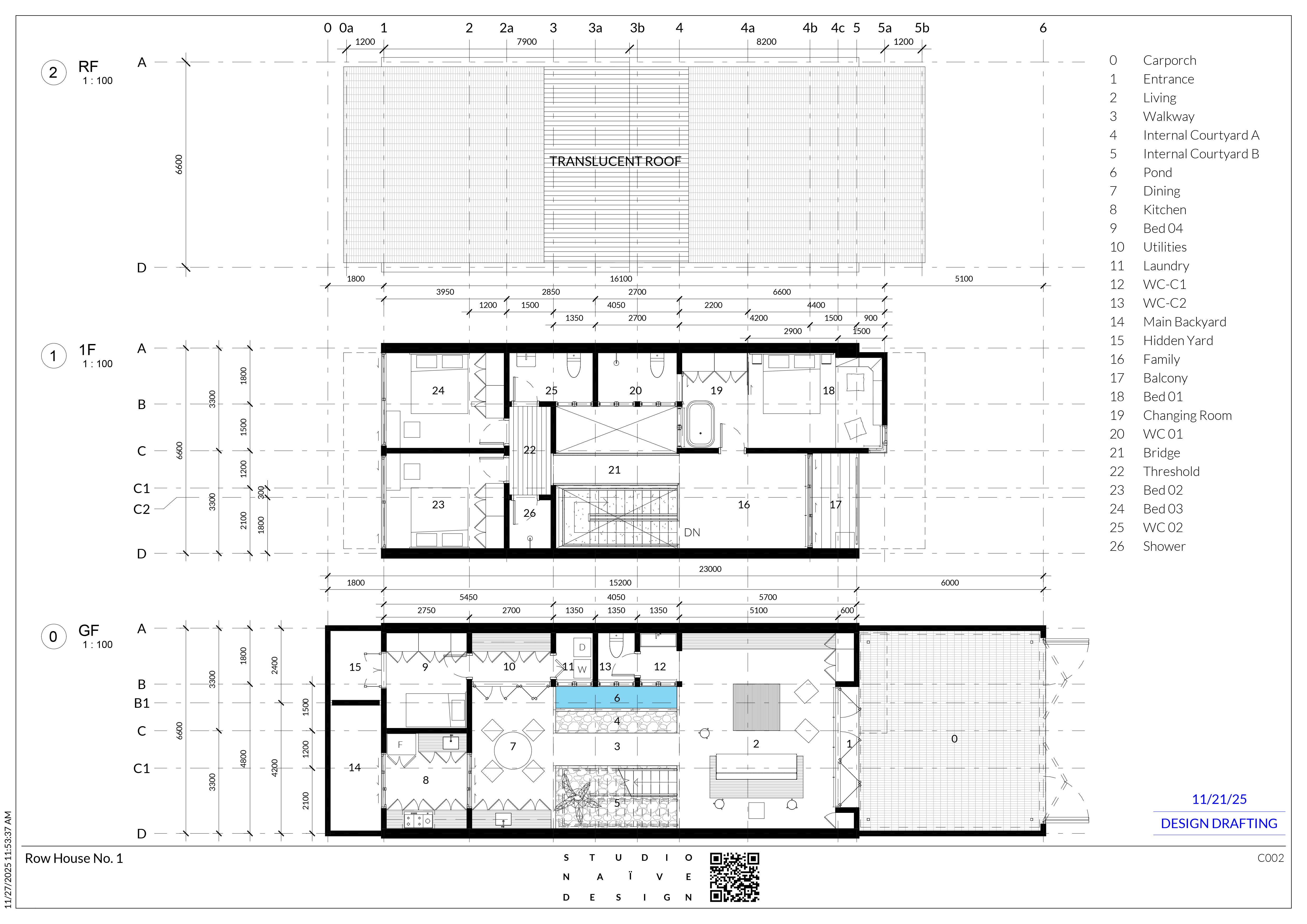
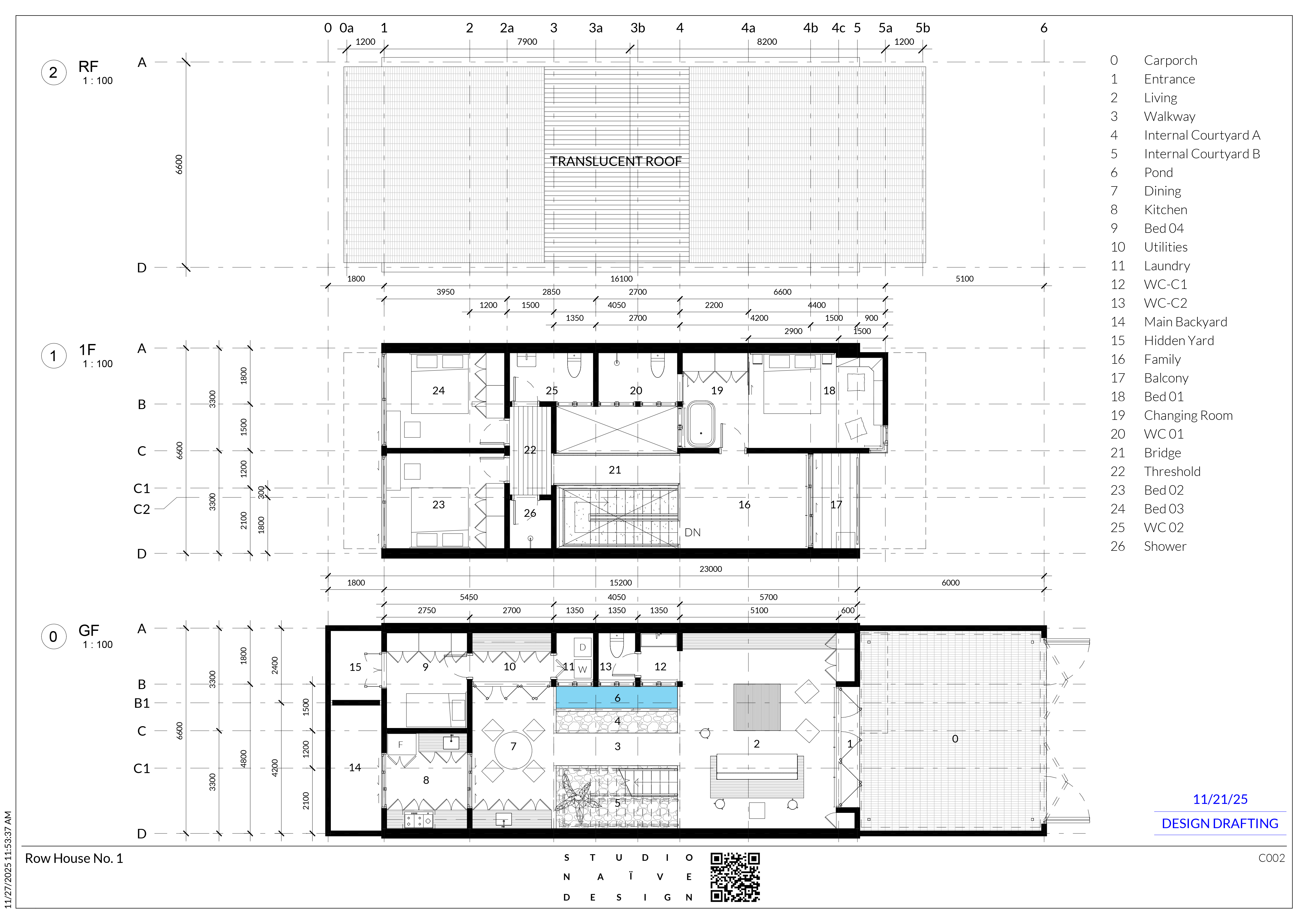
The study is a pre-study to understand row houses, their scales and their typology. The typical 22x70 double-storey configurations with a 4-bedroom layout struggle to receive sufficient natural sunlight, as the central portion of the ground floor tends to be particularly dark. Toilets often occupy portions of the front or rear façade, which limits the placement and quality of other living spaces.
An indoor courtyard can address these issues by creating a usable internal space that brings daylight to the ground floor. It also serves as a buffer between different programs and improves overall spatial quality of the house. However, the ventilation requirements of the toilets may necessitate the use of mechanical ventilation systems
An indoor courtyard can address these issues by creating a usable internal space that brings daylight to the ground floor. It also serves as a buffer between different programs and improves overall spatial quality of the house. However, the ventilation requirements of the toilets may necessitate the use of mechanical ventilation systems



STUDIO NAÏVE DESIGN 2024