S
T
U
D
I
E
S
/
S
N
D
/
DRAWING TEMPLATE V1
DRAWING TEMPLATE + ANNOTATION SYSTEM
20260416
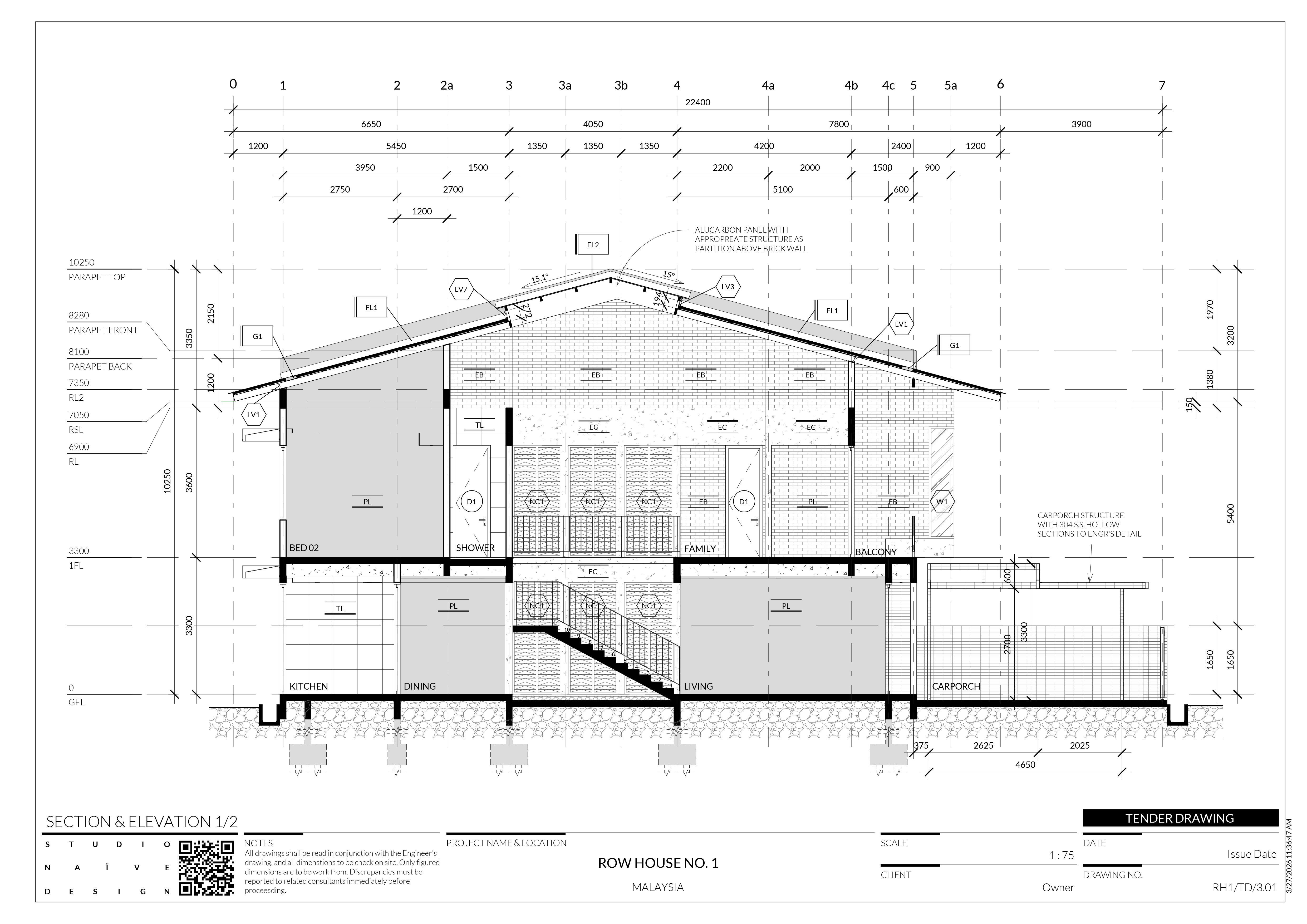
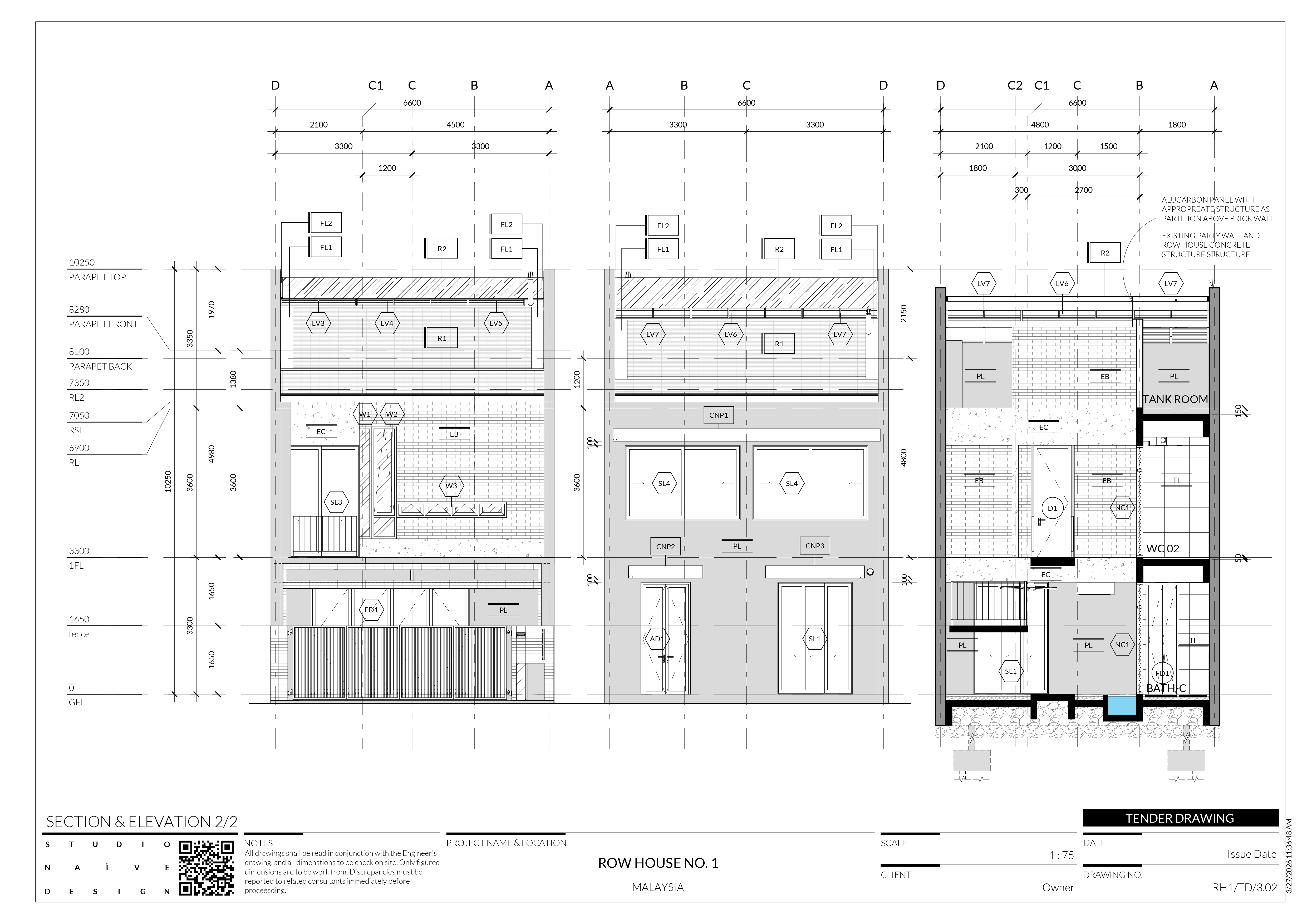
This study aims to develop an initial set of office drawing standards, while also exploring a potential workflow from design to documentation.
The first draft of the annotation system may still be incomplete or problematic. However, it addresses key concerns drawn from previous on-site experience and translate them into the drawings. At this stage, the system is not yet sufficiently simplified, and not all considerations have been fully incorporated.
The first draft of the annotation system may still be incomplete or problematic. However, it addresses key concerns drawn from previous on-site experience and translate them into the drawings. At this stage, the system is not yet sufficiently simplified, and not all considerations have been fully incorporated.






STUDIO NAÏVE DESIGN 2024